Version: 8.25.1Navigation überspringen

26 annonce(s) immobilière(s) en vente Villiers-le-Sec 95720

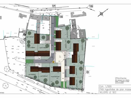
Le Pavillon Français
Terrain constructible viabilisé à vendre 176 000 € 521 m² de terrain Villiers-le-Sec 95720
Nouveau
176 000 € 338 €/m²
Terrain constructible viabilisé à vendre
521 m² de terrain
Villiers-le-Sec (95720)
R+1 possible.Prix : 176000 euros.Sur ce terrain de 521 m² à VILLIERS-LE-SEC, Le Pavillon Français vous propose de réaliser votre projet de construction de maison individuelle.Le Pavillon Français con...
Le Pavillon Français
À voir sur SeLoger Construire
Duplex à vendre 279 000 € 6 pièces 3 chambres 129 m² Étage 1/1 Villiers-le-Sec 95720
D
279 000 € 2 163 €/m²
Duplex à vendre
6 pièces
·
3 chambres
·
129 m²
·
Étage 1/1
Villiers-le-Sec (95720)
iad France - Valérie Gambet vous propose: Dans une commune rurale, découvrez cet appartement duplex de 129m2 entièrement rénové, au 1er étage, avec terrasse. Au rez-de-chaussée, un garage offre un st...
Exclusivitéiad France Valérie Gambet
MAISONS FRANCE CONFORT
Terrain avec maison neuve à vendre 350 422 € 4 pièces 3 chambres 78 m² 613 m² de terrain Villiers-le-Sec 95720
A
350 422 € 4 493 €/m²
Terrain avec maison neuve à vendre
4 pièces
·
3 chambres
·
78 m²
·
613 m² de terrain
Villiers-le-Sec (95720)
VENTE : maison neuve de 4 pièces (78 m²) à Villiers-le-Sec À Villiers-le-Sec (95720), projet de maison neuve de 78 m² avec 3 chambres sur un terrain de 613 m², situé dans un environnement calme et ag...
MAISONS FRANCE CONFORT
À voir sur SeLoger Construire
MAISONS SESAME
Terrain avec maison neuve à vendre 308 470 € 5 pièces 3 chambres 97 m² 280 m² de terrain Villiers-le-Sec 95720
Nouveau
308 470 € 3 180 €/m²
Terrain avec maison neuve à vendre
5 pièces
·
3 chambres
·
97 m²
·
280 m² de terrain
Villiers-le-Sec (95720)
A VILLIERS-LE-SEC sur un terrain de 280 m², MAISONS SESAME vous propose de réaliser cette maison neuve d'une surface de 97 m² habitables avec 3 chambres. Le modèle CITRINE est une maison à combles am...
MAISONS SESAME
À voir sur SeLoger Construire
MAISONS SESAME
Terrain avec maison neuve à vendre 375 000 € 6 pièces 4 chambres 124 m² 280 m² de terrain Villiers-le-Sec 95720
Nouveau
375 000 € 3 024 €/m²
Terrain avec maison neuve à vendre
6 pièces
·
4 chambres
·
124 m²
·
280 m² de terrain
Villiers-le-Sec (95720)
A VILLIERS-LE-SEC sur un terrain de 280 m², MAISONS SESAME vous propose de réaliser cette maison neuve d'une surface de 124 m² habitables avec 4 chambres. Le modèle TOURMALINE offre une surface habit...
MAISONS SESAME
À voir sur SeLoger Construire
MAISONS SESAME
Terrain avec maison neuve à vendre 303 831 € 5 pièces 4 chambres 118 m² 280 m² de terrain Villiers-le-Sec 95720
Nouveau
303 831 € 2 575 €/m²
Terrain avec maison neuve à vendre
5 pièces
·
4 chambres
·
118 m²
·
280 m² de terrain
Villiers-le-Sec (95720)
A VILLIERS-LE-SEC sur un terrain de 280 m², MAISONS SESAME vous propose de réaliser cette maison neuve d'une surface de 118 m² habitables avec 4 chambres. Avec ses 118 m² de surface habitable, la mai...
MAISONS SESAME
À voir sur SeLoger Construire
MAISON D'EN FRANCE - HOUILLES
Terrain avec maison neuve à vendre 309 501 € 5 pièces 4 chambres 89,2 m² 280 m² de terrain Villiers-le-Sec 95720
Nouveau
309 501 € 3 469 €/m²
Terrain avec maison neuve à vendre
5 pièces
·
4 chambres
·
89,2 m²
·
280 m² de terrain
Villiers-le-Sec (95720)
Sur un terrain de 280 m², devenez propriétaire de votre maison neuve 4 chambres de 89.22 m². Nos maisons sont toutes sur-mesure et entièrement personnalisables avec plan de 2 à 5 chambres, mode de ch...
MAISON D'EN FRANCE - HOUILLES
À voir sur SeLoger Construire
MAISON D'EN FRANCE - HOUILLES
Terrain avec maison neuve à vendre 355 501 € 6 pièces 4 chambres 100 m² 603 m² de terrain Villiers-le-Sec 95720
Nouveau
355 501 € 3 555 €/m²
Terrain avec maison neuve à vendre
6 pièces
·
4 chambres
·
100 m²
·
603 m² de terrain
Villiers-le-Sec (95720)
Sur un terrain de 603 m², devenez propriétaire de votre maison neuve 4 chambres de 100.57 m². Nos maisons sont toutes sur-mesure et entièrement personnalisables avec plan de 2 à 5 chambres, mode de c...
MAISON D'EN FRANCE - HOUILLES
À voir sur SeLoger Construire
MAISONS SESAME
Terrain constructible viabilisé à vendre 183 000 € 603 m² de terrain Villiers-le-Sec 95720
183 000 € 303 €/m²
Terrain constructible viabilisé à vendre
603 m² de terrain
Villiers-le-Sec (95720)
Terrain en lot avant, déjà viabilisé, d'une surface de 606m². Faites construire votre maison Sesame, les plans de maisons sont modifiables, en surface et en agencement, en fonction de votre projet de...
MAISONS SESAME
À voir sur SeLoger Construire
Sponsorisé
Le Pavillon Français
Terrain constructible viabilisé à vendre 270 000 € 640 m² de terrain Attainville 95570
Nouveau
270 000 € 422 €/m²
Terrain constructible viabilisé à vendre
640 m² de terrain
Attainville (95570)
Secteur DOMONT À 30MN de l'aéroport CDG Accès direct à la N104 , Ligne H À quelques minutes direction Paris en 30 mn Terrain entièrement viabilisé , possibilité R+1 Belle façade ,belle situation en s...
Le Pavillon Français
À voir sur SeLoger Construire
SeLoger logo
MAISONS FRANCE CONFORT
Terrain avec maison neuve à vendre 375 944 € 5 pièces 3 chambres 80 m² 613 m² de terrain Villiers-le-Sec 95720
A
375 944 € 4 699 €/m²
Terrain avec maison neuve à vendre
5 pièces
·
3 chambres
·
80 m²
·
613 m² de terrain
Villiers-le-Sec (95720)
VENTE : maison neuve de 5 pièces (80 m²) à Villiers-le-Sec À Villiers-le-Sec (95720), projet de maison neuve de 80 m² comprenant 3 chambres sur un terrain de 613 m², situé dans un environnement calme...
MAISONS FRANCE CONFORT
À voir sur SeLoger Construire
MAISONS FRANCE CONFORT
Terrain avec maison neuve à vendre 416 330 € 7 pièces 5 chambres 120 m² 613 m² de terrain Villiers-le-Sec 95720
A
416 330 € 3 469 €/m²
Terrain avec maison neuve à vendre
7 pièces
·
5 chambres
·
120 m²
·
613 m² de terrain
Villiers-le-Sec (95720)
VENTE : maison neuve de 7 pièces (120 m²) à Villiers-le-Sec À Villiers-le-Sec (95720), projet de maison neuve de 120 m² comprenant 5 chambres sur un terrain de 613 m², situé dans un environnement cal...
MAISONS FRANCE CONFORT
À voir sur SeLoger Construire
LDT CAUFFRY
Terrain constructible à vendre 183 000 € 603 m² de terrain Villiers-le-Sec 95720
Nouveau
183 000 € 303 €/m²
Terrain constructible à vendre
603 m² de terrain
Villiers-le-Sec (95720)
Vous rêvez de devenir propriétaire d'une maison qui vous ressemble vraiment ? C'est le moment ou jamais de vous lancer ! Sur un superbe terrain de 603m² situé à Villiers le sec, Les Demeures Traditio...
LDT CAUFFRY
À voir sur SeLoger Construire
MAISONS BALENCY
Terrain avec maison neuve à vendre 587 000 € 8 pièces 5 chambres 200 m² 603 m² de terrain Villiers-le-Sec 95720
A
587 000 € 2 935 €/m²
Terrain avec maison neuve à vendre
8 pièces
·
5 chambres
·
200 m²
·
603 m² de terrain
Villiers-le-Sec (95720)
VENTE : maison de 8 pièces (200 m²) à Villiers-le-Sec Paris à 35 min (Transilien H, Belloy-Saint-Martin) - À découvrir à Villiers-le-Sec (95720) : maison neuve 8 pièces en vente. 2 niveaux, surface d...
MAISONS BALENCY
À voir sur SeLoger Construire
MAISONS FRANCE CONFORT
Terrain avec maison neuve à vendre 373 352 € 6 pièces 4 chambres 109 m² 613 m² de terrain Villiers-le-Sec 95720
A
373 352 € 3 425 €/m²
Terrain avec maison neuve à vendre
6 pièces
·
4 chambres
·
109 m²
·
613 m² de terrain
Villiers-le-Sec (95720)
VENTE : maison neuve de 6 pièces (109 m²) à Villiers-le-Sec À Villiers-le-Sec (95720), projet de maison neuve de 109 m² comprenant 4 chambres sur un terrain de 613 m², situé dans un environnement cal...
MAISONS FRANCE CONFORT
À voir sur SeLoger Construire
LDT CAUFFRY
Terrain avec maison neuve à vendre 390 000 € 7 pièces 5 chambres 114,2 m² 298 m² de terrain Villiers-le-Sec 95720
Nouveau
A
390 000 € 3 416 €/m²
Terrain avec maison neuve à vendre
7 pièces
·
5 chambres
·
114,2 m²
·
298 m² de terrain
Villiers-le-Sec (95720)
La région a certaines particularités en termes de construction et d'architecture. Les dispositions d'urbanisme imposent des matériaux, coloris d'enduit et de tuiles, nous avons donc conçu ce modèle p...
LDT CAUFFRY
À voir sur SeLoger Construire
MTLF Mareuil les Meaux
Terrain avec maison neuve à vendre 439 000 € 1 pièce 4 chambres 148,4 m² Villiers-le-Sec 95720
439 000 € 2 958 €/m²
Terrain avec maison neuve à vendre
1 pièce
·
4 chambres
·
148,4 m²
Villiers-le-Sec (95720)
Ludovic PREVITI les Maisons MTLF Mareuil les Meaux constructeur depuis 1945 au O6 61 13 28 10, à sélectionné pour votre projet de construction à VILLIERS LE SEC dans le 95 un terrain plat de 521m² vi...
MTLF Mareuil les Meaux
À voir sur SeLoger Construire
FLINT IMMOBILIER
Terrain constructible viabilisé à vendre 129 000 € 281 m² de terrain Villiers-le-Sec 95720
Nouveau
129 000 € 459 €/m²
Terrain constructible viabilisé à vendre
281 m² de terrain
Villiers-le-Sec (95720)
Accès direct Francilienne 10min Roissy CDG/TGV Départementale D316 / D301 3 terrains à bâtir viabilisés de 278 m² à 298 m². Prêt à bâtir.
FLINT IMMOBILIER
À voir sur SeLoger Construire
SeLoger logo
MAISONS STILL
Terrain avec maison neuve à vendre 300 000 € 1 chambre 90 m² 300 m² de terrain Villiers-le-Sec 95720
300 000 € 3 333 €/m²
Terrain avec maison neuve à vendre
1 chambre
·
90 m²
·
300 m² de terrain
Villiers-le-Sec (95720)
Découvrez cette magnifique opportunité de réaliser votre rêve immobilier avec Maisons STILL, un constructeur reconnu pour son expertise et la qualité de ses projets. Sur la commune de Villiers le Sec...
MAISONS STILL
À voir sur SeLoger Construire
MTLF Mareuil les Meaux
Terrain avec maison neuve à vendre 365 900 € 1 pièce 3 chambres 101,4 m² Villiers-le-Sec 95720
365 900 € 3 610 €/m²
Terrain avec maison neuve à vendre
1 pièce
·
3 chambres
·
101,4 m²
Villiers-le-Sec (95720)
Ludovic PREVITI les Maisons MTLF Mareuil les Meaux constructeur depuis 1945 au O6 61 13 28 10, à sélectionné pour votre projet de construction à VILLIERS LE SEC dans le 95 un terrain plat de 495m² vi...
MTLF Mareuil les Meaux
À voir sur SeLoger Construire
MAISONS FRANCE CONFORT
Terrain constructible à vendre 185 000 € 613 m² de terrain Villiers-le-Sec 95720
185 000 € 302 €/m²
Terrain constructible à vendre
613 m² de terrain
Villiers-le-Sec (95720)
VENTE : terrain de 613 m² à Villiers-le-Sec À Villiers-le-Sec (95720), beau terrain de 613 m² situé dans un environnement calme avec une agréable exposition sud-ouest, idéal pour concrétiser votre pr...
MAISONS FRANCE CONFORT
À voir sur SeLoger Construire
FLINT IMMOBILIER
Terrain constructible à vendre 183 000 € 603 m² de terrain Villiers-le-Sec 95720
183 000 € 303 €/m²
Terrain constructible à vendre
603 m² de terrain
Villiers-le-Sec (95720)
Accès direct Francilienne - 10min Roissy CDG/TGV Départementale D316 / D301 12 terrains à bâtir viabilisés de 410 m² à 612 m². DERNIER LOT : 603 m² Prix : 183 000 € Prêt à bâtir.
FLINT IMMOBILIER
À voir sur SeLoger Construire
SeLoger logo
Terrain constructible à vendre 188 000 € 603 m² de terrain Villiers-le-Sec 95720
188 000 € 312 €/m²
Terrain constructible à vendre
603 m² de terrain
Villiers-le-Sec (95720)
- À Vendre : Terrain Exceptionnel de 603 m² – Idéal pour Votre Future Maison ! ?? Situé dans un environnement prisé, ce magnifique terrain de 603 m² offre un cadre naturel rare et recherché. Parfait ...
AFONSO Gérald Agent mandataire Optimhome
Sponsorisé
Le Pavillon Français
Terrain constructible viabilisé à vendre 280 000 € 784 m² de terrain Attainville 95570
Nouveau
280 000 € 357 €/m²
Terrain constructible viabilisé à vendre
784 m² de terrain
Attainville (95570)
Secteur DOMONT À 30MN de l'aéroport CDG Accès direct à la N104 , Ligne H À quelques minutes direction Paris en 30 mn Terrain entièrement viabilisé , possibilité R+1 Belle façade ,belle situation en s...
Le Pavillon Français
À voir sur SeLoger Construire
Maisons MTLF
Terrain constructible à vendre 185 000 € 613 m² de terrain Villiers-le-Sec 95720
185 000 € 302 €/m²
Terrain constructible à vendre
613 m² de terrain
Villiers-le-Sec (95720)
À visiter dès maintenant ! Terrain plat de 613 m² bénéficiant d’une bonne orientation, dans un quartier pavillonnaire, situé sur la commune de Villiers-le-Sec . Bénéficiez de toutes les commodités de...
Maisons MTLF
À voir sur SeLoger Construire
MTLF Mareuil les Meaux
Terrain avec maison neuve à vendre 362 117 € 1 pièce 1 chambre 115,9 m² Villiers-le-Sec 95720
362 117 € 3 125 €/m²
Terrain avec maison neuve à vendre
1 pièce
·
1 chambre
·
115,9 m²
Villiers-le-Sec (95720)
Ludovic PREVITI les Maisons MTLF Mareuil les Meaux constructeur depuis 1945 au O6 61 13 28 10, à sélectionné pour votre projet de construction à VILLIERS LE SEC dans le 95 un terrain plat de 411m² vi...
MTLF Mareuil les Meaux
À voir sur SeLoger Construire
MTLF Mareuil les Meaux
Terrain avec maison neuve à vendre 339 000 € 1 pièce 1 chambre 112,8 m² Villiers-le-Sec 95720
339 000 € 3 006 €/m²
Terrain avec maison neuve à vendre
1 pièce
·
1 chambre
·
112,8 m²
Villiers-le-Sec (95720)
Ludovic PREVITI les Maisons MTLF Mareuil les Meaux constructeur depuis 1945 au O6 61 13 28 10, à sélectionné pour votre projet de construction à VILLIERS LE SEC dans le 95 un terrain plat de 432m² vi...
MTLF Mareuil les Meaux
À voir sur SeLoger Construire
SOLIMO LUZARCHES
Maison à vendre 305 900 € 5 pièces 3 chambres 133 m² 276 m² de terrain Villiers-le-Sec 95720
Nouveau
D
305 900 € 2 300 €/m²
Maison à vendre
5 pièces
·
3 chambres
·
133 m²
·
276 m² de terrain
Villiers-le-Sec (95720)
Laforêt Luzarches vous présente en exclusivité : Située dans un quartier calme et résidentiel de Villiers-le-Sec à quelques minutes de Montsoult, cette charmante maison rénovée avec soin offre un cad...
ExclusivitéSOLIMO LUZARCHES
SeLoger logo
Plus d'annonces à proximité
Découvrez d'autres annonces dans les environs de Villiers-le-Sec, 95720
Maison de ville à vendre 189 000 € 4 pièces 3 chambres 55 m² Belloy-en-France 95270
D
189 000 € 3 436 €/m²
Maison de ville à vendre
4 pièces
·
3 chambres
·
55 m²
Belloy-en-France (95270)
iad France - Virginie Ryckx vous propose: Mieux qu'un appartement! Charmante maison de ville à Belloy-en-France, proche de toutes les commodités. Entièrement rénové, cette maison de ville de 70M² (55...
iad France Virginie Ryckx
MAISONS PIERRE
Terrain avec maison neuve à vendre 295 900 € 5 pièces 4 chambres 106 m² 516 m² de terrain Belloy-en-France 95270
Nouveau
A
295 900 € 2 792 €/m²
Terrain avec maison neuve à vendre
5 pièces
·
4 chambres
·
106 m²
·
516 m² de terrain
Belloy-en-France (95270)
Découvrez ce terrain situé à BELLOY EN FRANCE, dans un cadre calme et verdoyant proposant une surface de 516m². Parmi le large catalogue de Maisons Pierre, nous avons sélectionné pour vous une maison...
MAISONS PIERRE
À voir sur SeLoger Construire
Maison à vendre 480 000 € 7 pièces 5 chambres 228 m² 600 m² de terrain Belloy-en-France 95270
C
480 000 € 2 105 €/m²
Maison à vendre
7 pièces
·
5 chambres
·
228 m²
·
600 m² de terrain
Belloy-en-France (95270)
Coup de coeur assuré pour cette belle maison familiale issue d'un ancien corps de ferme rénové, alliant charme de l'ancien, beaux volumes et confort moderne. Un bien rare, idéal pour une famille rech...
TAVERNY IMMO
MTLF Mareuil les Meaux
Terrain avec maison neuve à vendre 349 000 € 1 pièce 1 chambre 115,9 m² Belloy-en-France 95270
349 000 € 3 012 €/m²
Terrain avec maison neuve à vendre
1 pièce
·
1 chambre
·
115,9 m²
Belloy-en-France (95270)
Ludovic PREVITI les Maisons MTLF Mareuil les Meaux constructeur depuis 1945 au O6 61 13 28 10, à sélectionné pour votre projet de construction à BELLOY EN FRANCE dans le 95 un terrain plat de 390m² v...
MTLF Mareuil les Meaux
À voir sur SeLoger Construire
À quel point êtes-vous satisfait de cette page (pas des annonces elles-mêmes) ?
Vos tendances immo
Prix immobilier par m²
Avril 2026
Apartment building illustration
Appartement
3 302 €/m²
Prix le plus bas
2 476 €/m²
Prix le plus élevé
4 953 €/m²
House illustration
Maison
2 306 €/m²
Prix le plus bas
1 170 €/m²
Prix le plus élevé
2 910 €/m²
Évolution des prix
Explorez les tendances immo localement et sur le marché plus large au cours des 5 dernières années.
1 mois
-0.2%
6 mois
-3%
1 an
-5.3%
5 ans
-4.6%
Villiers-le-Sec
Ile-de-France
Zoom sur le marchéAccédez aux prix détaillés des biens immobiliers, jusqu'à l'adresse exacte.